In den vergangenen rund 37 Jahren hat sich der Adler Adelboden als fester Bestandteil Adelbodens etabliert. Um auch künftig ein spannendes Gesamtangebot für Gäste wie Einheimische bieten zu können und als attraktiver Arbeitgeber sowie verlässlicher Partner in der Region aufzutreten, plant die Hotel Adler AG erneut umfassende Investitionen in der Höhe von mehreren Millionen Schweizer Franken.
Unser Projekt für die Zukunft
Für authentische Gastfreundschaft und Qualität steht der Adler Adelboden im Herzen des Lohnerdorfes. In der Vergangenheit wurden immer wieder richtungsweisende Investitionen umgesetzt. Diesem Weg bleiben wir treu und schreiben ein nächstes Kapitel in mehreren Etappen.
Stark verwurzelt

Die erste Etappe
Die Umsetzung der ersten Etappe ist für das Frühjahr 2026 vorgesehen. Während rund zehn Wochen werden die Küche und die angrenzende Adlerstube vollständig erneuert. Gleichzeitig entstehen zeitgemässe Mitarbeiterräumlichkeiten, und die Nebenräume inklusive Wäscheversorgung werden neu organisiert. Auch die Haustechnik wird modernisiert: Neben dem Ersatz der bestehenden Kühlanlage und weiteren Massnahmen zur Effizienzsteigerung wird die Lüftung den heutigen Betriebsanforderungen angepasst.

Verläuft alles planmässig, bleibt der Adler Adelboden vom 22. März bis 29. Mai 2026 geschlossen, damit die Arbeiten zügig und ohne Einschränkungen für Gäste durchgeführt werden können.
Abbruch & Aufbruch.
Damit Neues entstehen kann, muss Altes weichen. Die Abbrucharbeiten erfolgen in kürzester Zeit. Die Bauzeit ist knapp bemessen – jeder Handgriff zählt.
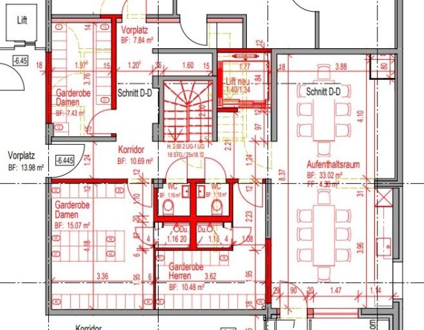
Neue vertikale Wege.
Durch den Liftschacht unseres Warenlifts entsteht künftig eine interne Treppe, während ein neuer Lift im ehemaligen Fluchttreppenhaus das 2. Untergeschoss mit dem 3. Obergeschoss verbindet. Solche besonderen Wege verlangen nach massgeschneiderten Lösungen.
gemütlich. stimmungsvoll. persönlich.
Mit der Adler-Stube entsteht ein Raum voller Kraft und Eleganz. Durch die Welt der Farben und Materialien führt uns unsere Innenarchitektin Francesca Adler.
Keine alltägliche Ankunft.
Die Elektroinstallateure sind angekommen und haben im Hintergrund bereits mit dem Leitungsbau begonnen. Bei so viel Gepäck ist klar: Sie bleiben wohl etwas länger.
"Die erste Etappe ist wie eine Operation am Herzen: Massgebend für den künftig schlagenden Puls im ganzen Haus."
Mathias Fankhauser
Gastgebender
Der Start im Hintergrund
Der Adler Adelboden ist noch bis zum 22. März 2026 geöffnet. Während der Betrieb weiterläuft, haben im Hintergrund bereits die ersten Arbeiten begonnen – diskret, leise und ohne Einschränkungen für unsere Gäste. Los geht’s!
Mehr als nur eine neue Küche.
Ein Ort, der Prozesse vereinfacht, Mitarbeitende entlastet und Raum für das Wesentliche schafft: authentische Gastronomie - getragen von Qualität, Saisonalität und Regionalität.
Bye Bye Wäscherei!
Durch die Reorganisation der Nebenräume verschwindet unsere hauseigene Wäscherei. Unsere Wäsche wird künftig in der Grosswäscherei in Interlaken aufbereitet. Im Haus erfolgt nur noch der Wäscheumschlag und das Waschen von Kleinmengen.
Ein weiterer Schritt in Richtung Effizienz und Zukunft.
Für die Menschen, die mit uns arbeiten.
Ein Hotel lebt dank Menschen, die darin arbeiten. Mit dieser Überzeugung entstehen im Zuge der Weiterentwicklung zeitgemässe Räumlichkeiten für unsere Mitarbeitenden - Sonnenterrasse inklusive!
«Mit diesen Investitionen stärken wir den Adler Adelboden für die Zukunft und bekennen uns klar zu Qualität, Nachhaltigkeit und Adelboden.»
Arlette von Allmen, Verwaltungsratspräsidentin
Ein erster Blick.
Unsere Innenarchitektin Francesca fand im Adler die Inspiration für den Gastraum: ausgebreitete Spannflügel, kraftvolle Präsenz und grazile Würde. So entsteht ein Ort voller Stärke und Eleganz – die Adler-Stube.
Wie es los ging.
Was zeichnet den Adler Adelboden aus?
Wie sieht die Zukunft aus? Wo sollte gehandelt werden?
Drei von vielen Fragen, die wir uns gemeinsam mit dem Verwaltungsrat während der Projektentwicklung gestellt haben.
Die weiteren Etappen
In den Folgejahren sind weitere Investitionen im Wellnessbereich vorgesehen. Ein attraktiver Spa-Bereich soll das stimmige Gesamtangebot stärken und die Position als etabliertes Hotel im Ort festigen. Wir setzen damit ein klares Zeichen für eine zeitgemässe Hotellerie und tragen mit der Erweiterung und Erneuerung des Spa-Angebots aktiv zur Ganzjahresstrategie der Destination bei.
